Ceiling embedded shell, human body sensor switch infrared human body sensor shell
Ceiling embedded shell, human body sensor switch infrared human body sensor shell
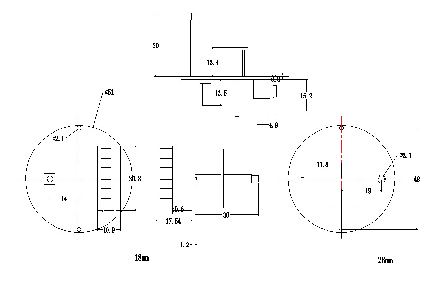
Specifications
white
black
Name: Ceiling mounted Sensor Shell
Specification: Diameter of 70mm, thickness of 51mm, ceiling or wall opening size of about 75mm (manual measurement may have errors, please refer to the actual product)
Material : ABS





